Zentrum Verkündigung

Zentrum Verkündigung / Umbau Markuskirche, Bilder: Ruedi Walti, Basel
1 2 3 4 5 6 
Zentrum Verkündigung / Umbau Markuskirche, Bild: Ruedi Walti, Basel
1 2 3 4 5 6 
Zentrum Verkündigung / Umbau Markuskirche, Bild: Ruedi Walti, Basel
1 2 3 4 5 6 
Zentrum Verkündigung / Umbau Markuskirche, Bild: Ruedi Walti, Basel
1 2 3 4 5 6 
Zentrum Verkündigung / Umbau Markuskirche, Bild: Ruedi Walti, Basel
1 2 3 4 5 6 
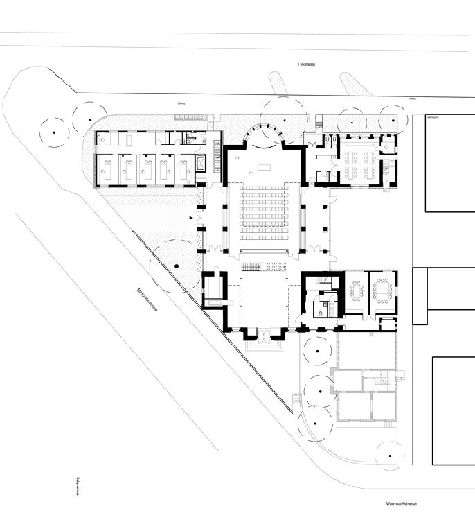
Zentrum Verkündigung / Umbau Markuskirche,  Grundriss
1 2 3 4 5 6 

Architekten: BaruccoPfeifer Architektur. Darmstadt / pfeifer roser kuhn, Freiburg
Bauherr: Evangelischer Regionalverband Frankfurt am Main
Tragwerksplaner: Bollinger + Grohmann Ingenieure, Frankfurt am Main
Energieplaner: Delzer kybernetik GmbH, Lörrach / Balck+Partner Facility Engineering, Heidelberg
Standort: Markgrafenstraße 14, 60487 Frankfurt am Main

Die ehemalige Jugendstilkirche vom Ende des 18. Jahrhunderts wurde im Krieg stark beschädigt und wieder mit einem neuen Dachstuhl versehen. Doch die Um- und Anbaumaßnahmen der 60er Jahre haben ihr noch mehr zugesetzt. Die Ostseite wurde mit einem Gemeindesaal zugebaut, die Südseite erhielt im Innenraum eine Orgelempore. Die Westseite erhielt einen Anbau für die Aktivitäten der Jugend. Mit dem wirren Ergebnis unterschiedlicher Stile und Erscheinungen im Inneren wie im Äußeren konnte niemand zufrieden sein. Mit dem Zentrum Verkündigung erwuchs die Aufgabe, das Heterogene zum Homogenen umzuwandeln und dem Neuen eine entsprechende Prägung zu geben. Das Kirchenschiff wurde als einheitlicher Baukörper wieder hergestellt und dem Innenraum der Kirche die ehemals vorhandene Lichtdurchdringung wieder zurückgegeben. Mit der Verkleinerung des sakralen Raumes entstanden zusätzliche Räume: das Foyer im Erdgeschoss, ein Meditationsraum und die Bibliothek, die den Sakralraum im Obergeschoss umschließt. Das alte Pfarrhaus wurde in das Konzept ebenso integriert wie die neuen Anbauten und Ergänzungen, welche die Neubauteile mit einer gläsernen Luftkollektorhülle umgeben und damit vom alten Kirchengebäude absetzen. Im Inneren sind unter den Kriegsverletzungen die Reste der Jugendstilarchitektur aufgetaucht. Die neuen Bauelemente stehen unter dem Diktat puristischer Reduktion unter Verwendung zeitgemäßer Materialien, die eher der heutigen Industriearchitektur zuzuordnen sind. Die Balance zwischen Banalem und Spirituellem gelingt durch die Wahrhaftigkeit dieser Materialität und einer perfekten Verarbeitung. Die Kohärenz von Materialität und Gestalt in Verbindung mit dem Torso des Vergangenen wird damit überall spürbar und verleiht dem Inneren jene Spiritualität, die in der Eingangssituation leider nicht eingelöst werden kann.
(Text: Günter Pfeifer Architekten)

Zurück  |  Drucken  |  Versenden