Mehrfamilienhäuser Lindenstraße 29-31

Karl Richter Architekten, Lindenstraße 29–31
1 2 3 4 
Stadthaus Lindenstraße, Karl Richter Architekten, Lageplan
1 2 3 4 
Stadthaus Lindenstraße, Karl Richter Architekten, Grundriss EG
1 2 3 4 
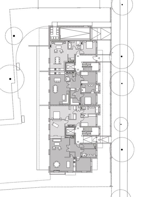
Stadthaus Lindenstraße, Karl Richter Architekten, Grundriss 2. OG
1 2 3 4 

Architekten: Karl Richter Architekten BDA
Auftraggeber: Lindenstraße 29-35 GmbH
BGF: 3.250 qm ohne Untergeschoss
Anzahl der Wohnungen: 20
Reine Baukosten brutto: 4,8 Mio. EUR
Standort: Lindenstraße 29-31
Fertigstellung: 2013

Das Gebäude greift mit seinen erkerartigen Vorbauten, die optisch durch Loggien und Balkons miteinander verbunden sind, Motive von Bauten der vorletzten Jahrhundertwende im Frankfurter Westend, aber auch der klassischen Moderne auf und interpretiert sie in zeitgenössischer Formensprache. Ein Teil der Fassade ist verputzt, die Brüstungsbänder mit einer Steinverkleidung versehen. Doppelflügelige Fenster und Fenstertüren unterstreichen die Eleganz des Fassadenbilds. Der südliche Gebäudekopf ist stark plastisch ausgebildet und verleiht der Fassade zusätzliche Dynamik. Das Staffelgeschoss mit seinen Vor- und Rücksprüngen gibt dem Gebäude einen kronenförmigen Abschluss.
Das Wohngebäude bietet Raum für 20 Wohnungen des gehobenen Segments, die von zwei künstlerisch gestalteten Treppenhäusern erschlossen werden. Jeweils zwei Wohnungen lassen sich zu einer Großwohnung zusammenschalten. Nach Westen sind den drei Wohnungen des Erdgeschosses große Gärten vorgelagert. Das Penthouse zeichnet sich nicht nur durch einen Skyline-Blick aus, sondern auch durch großzügige, nach Westen orientierte Terrassen. Die Konstruktion des Gebäudes ist so gewählt, dass vom Loft über die Allraum-Wohnung bis zur klassischen Dielenwohnung alle wohnungsinternen Aufteilungsmöglichkeiten gegeben sind.

Text: Karl Richter Architekten

Zurück  |  Drucken  |  Versenden